GCAN-218 CAN转4G网关
-


1.功能简介
1.1功能概述
广成科技GCAN-218是集成1路CAN接口、1路4G接口的高性能型CAN-bus总线通讯接口卡。采用GCAN-218高性能CAN接口卡,用户可以轻松完成CAN-bus网络和4G网络的互连互通,进一步拓展CAN-bus网络的范围。
广成科技GCAN-218高性能CAN接口卡是CAN-bus产品开发、CAN-bus数据分析的强大工具,云端服务器可以通过4G接口快速连接至CAN-bus网络,构成现场总线实验室、工业控制、智能小区、汽车电子网络等CAN-bus网络领域中数据处理、数据采集的CAN-bus网络控制节点。同时该设备具有体积小巧、即插即用等特点,也是便携式系统用户的最佳选择。
广成科技GCAN-218上已集成CAN接口电气隔离保护模块,使其避免由于瞬间过流/过压而对设备造成损坏,增强系统在恶劣环境中使用的可靠性。
1.2性能特点
● 电源供电范围和方式:(9~30V DC,典型值24V);● 静电放电抗扰度等级:接触放电±4KV,空气放电±8KV;● 电快速瞬变脉冲群抗扰度等级:±2KV;● 浪涌抗扰度等级:电源接口±1KV;CAN总线接口±4KV;● 工作湿度范围:5%~95%RH,无凝露;● 电气隔离等级:2500V DC;● 工作温度范围:-40℃~+85℃;● 防护等级:IP20;● 适用标准频段LTE-FDD B1/B3/B5/B8,LTE-TDD B34/B38/B39/B40/B41;● 接口形式:1路CAN总线接口,1路USB接口,1路4G,1路GPS(默认不带此功能),1个USB调试接口。电源、CAN为OPEN接线端子。4G和GPS的天线为同轴连接器。
2.设备安装
2.1设备尺寸
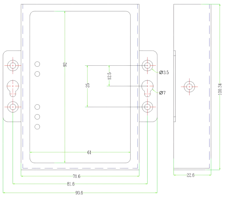
设备外形尺寸:(长,含接线端子)12cm*(宽)7.2cm*(高)2.3cm,其示意图如图2.1及图2.2所示,用户可根据此尺寸设计GCAN-218的安装固定孔。
图2.1 GCAN-218外形尺寸

图2.2 GCAN-218 安装尺寸
2.2接口定义及功能
GCAN-218模块集成1路CAN总线接口,1路USB接口,1路4G,1路GPS(默认不带此功能)。电源、CAN为OPEN接线端子。4G和GPS的天线为同轴连接器。其接口位置及定义如图2.3、表2.1所示。
图2.3电源及其他接口位置
表2.1电源及其他接口定义
GCAN-218模块CAN-bus接口由一个3PIN插拔式接线端子(绿色)引出,可以用于连接CAN-bus网络或者CAN-bus接口的设备,其接口位置及接口定义如图2.4、表2.2所示。
图2.4 CAN-bus接口位置
表2.2 CAN-bus接口定义
3. 设备使用
3.1 硬件准备
GCAN-218 模块使用+9~30V DC 供电(推荐使用+12V 或+24V 标准电源供电)。218 需要一张4G 物联卡或手机卡。将手机卡或物联卡放入卡槽内。如图所示,
需要先将外壳拆开,将4G 卡安装在红框内的插槽中。然后将附赠的天线接上。
图3.1 4G 卡安装位置
3.2设备调试及使用
本文我们选用花生壳作为云平台,以此作为范例进行讲解。
注:TCP模式可使用花生壳映射,UDP模式必须有真实IP服务器。
3.2.1花生壳使用
点击光盘资料,找到如图3.2所示“花生壳动态域名解析软件.exe”,双击打开。
图3.2
点击安装:
图3.3
安装成功后,如图3.4所示,安装界面会提示立即进入,桌面生成一个花生壳图标:

图3.4
如图3.5所示,进入页面后点击右下脚黑色加号,添加映射
图3.5
如图3.6所示,进入配置页面后,在应用类型处选择TCP,内网主机选择电脑IP(电脑需联网),端口填写8001(端口任意填写,本文以8001举例)。设置完成点击保存,花生壳映射即创建完成。

图3.6
3.2.2参数配置
用USB线将电脑与设备相连接,此时SYS处于蓝色闪烁状态。
在相关资料中选择如图3.7所示的配置软件“GCAN-218-config.exe”

图3.7
双击此配置软件后,如图3.8所示,桌面显示一个Connect Device窗口,此时查看电脑设备管理器中的端口号为COM4(每个电脑的端口号不同,本文以COM4为例进行讲解),此时Connect Device窗口中的串口号要与设备管理器中的端口号保持一致选择COM4,然后点击Connect
图3.8
如图3.9所示,点击Connect,链接成功后,提示“读取参数成功!”,点击确定,进入配置界面

图3.9
如图3.10所示,配置软件共有三个配置页面分别为“网络参数”、“CAN通道设置”、“滤波设置”。
图3.10
如图3.11所示,网络参数页面一共可以配置两处,一处为“本机标识”,一处为“链接目标IP或域名”;“本机标识”用于远程服务器区分数据来源,可根据需求进行更改。“链接目标IP或域名”此处填写之前所建立的映射的地址,即下图中红色方框内的内容。

图3.11
如图3.12所示,在CAN通道设置页面一共可配置三处,一处为“CAN1波特率”,一处为“TCP/UDP”;一处为“远端目标端口”;“CAN1波特率”为GCAN-218与CAN端通信时的波特率,可根据需求进行更改(注意:此处可更改的波特率均为CAN总线标准波特率,如有非标波特率的相关需求,应联系广成科技售后人员进行处理);“TCP/UDP”为TCP/UDP模式切换,TCP模式可使用花生壳映射,UDP模式必须有真实IP服务器;“远端目标端口”应与之前设定的花生壳映射中端口号保持一致。

图3.12
如图3.13所示,在滤波参数页面可进行滤波参数配置,首先勾选“滤波器使能”,模式处根据使用需要进行选择,标准帧选择“CAN1标准帧”,扩展帧选择“CAN1扩展帧”,起始ID处选择要设置的滤波的起始ID,结束ID选择要设置的滤波的结束ID。例如:要设置ID为181 182 183的标准帧滤波,则首先在模式处选择“CAN1标准帧”,起始ID设置为181,结束ID设置为183。如要设置ID为181的标准帧滤波,则首先需要在模式处选择“CAN1标准帧”,起始ID设置为181,结束ID设置为181。设置完成后点击“添加”,添加成功后有一组滤波参数在白色框内体现。滤波最多可以设置12组。
图3.13
如图3.14所示,所有参数设置完成后点击写配置,等待一段时间后,会有弹窗弹出提示“设置参数成功!”,点击确定。此时参数已经设置成功,需设备重新上电后使用方可生效。

图3.14
3.2.3通讯调试
设备连线:
将设备接入24V稳压直流电源,CAN口进行连线H连接CAN设备的H,L连接CAN设备的L。
通讯设置:
如图3.15所示,找到网络调试助手,双击打开。
图3.15
如图3.16所示,在协议类型处选择“TCP Server”,本机服务地址选择与花生壳映射中内网主机相同的地址,本机主机端口选择与花生壳映射中内网端口相同的端口号,点击打开后再客户端一栏处选择相应的IP地址。即可就收到CAN端发来的数据,如想给CAN端发送数据,则可以在发送框内进行发送,具体发送格式详见附录。

图3.16

图3.17 GCAN-218工作环境通讯示意图
3.3 CAN总线终端电阻
为了增强CAN通讯的可靠性,消除CAN总线终端信号反射干扰,CAN总线网络最远的两个端点通常要加入终端匹配电阻,如图3.18所示。终端匹配电阻的值由传输电缆的特性阻抗所决定。例如双绞线的特性阻抗为120Ω,则总线上的两个端点也应集成120Ω终端电阻。广成科技GCAN-218接口卡采用82C251收发器,如果网络上其他节点使用不同的收发器,则终端电阻须另外计算。

图3.17 GCAN-218工作环境通讯示意图
3.3 CAN总线终端电阻
为了增强CAN通讯的可靠性,消除CAN总线终端信号反射干扰,CAN总线网络最远的两个端点通常要加入终端匹配电阻,如图3.18所示。终端匹配电阻的值由传输电缆的特性阻抗所决定。例如双绞线的特性阻抗为120Ω,则总线上的两个端点也应集成120Ω终端电阻。广成科技GCAN-218接口卡采用82C251收发器,如果网络上其他节点使用不同的收发器,则终端电阻须另外计算。

图3.18广成科技GCAN-218与其他CAN节点设备连接
注意:广成科技GCAN-218内部已集成120Ω终端电阻,可通过拨码开关选择是否将电阻接入总线,拨码开关在CAN通信端子左侧,将俩个拨码都拨到ON的位置即可将电阻启用。
3.4 GPS功能
广成科技GCAN-218有两款区别在于是否带有GPS功能,带有GPS功能的GCAN-218对比不带GPS功能的设备增设GPS模块,其GPS天线位于CAN总线接口旁,设备外观如图3.19所示:
图3.19 GCAN-218 GPS
设备接线完成后,打开网络调试助手,工作模式选择TCP Server,选择相应的本地主机地址及主机端口,接受设置处选择用ASCII码显示,选择按日志模式显示,点击链接。当设备的SYS灯蓝绿色交替闪烁时,说明此时GPS功能连接成功,网络调试助手会有如图3.20一样的显示情况。绿色字符串为GPS的相关数据信息。

图3.20
定位信息数据格式
$XXRMC,<1>,<2>,<3>,<4>,<5>,<6>,<7>,<8>,<9>,<10>,<11>,<12>*hh<CR><LF>
XX:BD 为北斗模式,GP 为GPS 模式,GN 为双模模式
<1>UTC 时间,hhmmss(时分秒)格式<2>定位状态,A=有效定位,V=无效定位<3>纬度ddmm . mmmm(度分)格式(前面的0 也将被传输)<4>纬度半球N (北半球)或S(南半球)<5>经度dddmm . mmmmm(度分)格式〔前面的0 也将被传输)<6>经度半球E(东经)或W〔西经)<7>地面速率(000.0~999.9 节,前面的0 也将被传输)<8>地面航向(000.0~359.9 度,以真北为参考基准,前面的o 也将被传输)<9>UTC 日期,ddmmyy(日月年)格式<10>磁偏角(000.0~180.0 度,前面的0 也将被传输)<11>磁偏角方向,E(东)或W(西)<12>模式指示(仅NMEA0183 3.00 版本输出,A=自主定位,D=差分,E=估算,N=数据无效)
3.5系统状态指示灯
广成科技GCAN-218接口卡具有1个SYS指示灯、一个4G灯,用来指示设备的运行状态,1个DAT指示灯、1个CAN指示灯,用来指示总线状态。这4个指示灯的具体指示功能见表3.1,这4个指示灯处于不同状态时,GCAN-218的状态如表3.1所示。

表3.1广成科技GCAN-218接口卡指示灯
广成科技GCAN-218接口卡上电后,SYS指示灯蓝灯闪烁,表明设备供电正常,tcp未连接成功正在连接;同时4G指示灯蓝色闪烁,代表4G模块开始运行。
tcp连接成功后,SYS绿灯闪烁;sim卡注册成功后,4G灯绿色闪烁,当4G网络有数据在传输时,DAT指示灯闪烁。
当CAN总线上有数据收发时,CAN指示灯绿色闪烁。如产生通信故障,则红色指示灯会点亮。
(带有GPS模块的设备,当设备的SYS灯蓝绿色交替闪烁时,表明GPS功能连接成功。)

表3.2广成科技GCAN-218接口卡指示灯状态
3.6设备测试
3.6.1运行日志
可通过本节查看设备正常使用过程中的问题日志,以此来获得解决方案:
设备正常运行的前提下,使用USB TypeC线连接设备,打开串口调试软件,波特率选择“115200”,发送数据“ATPF”,勾选“发送新行”


点击“发送”按钮后,当前窗口会显示设备遇到的问题日志;对于GPS设备,若设备无问题,当前窗口会显示实时GPS数据,如上图所示。
4.技术规格


- 1、GCAN-204 modbus RTU转CAN设备使用
https://www.bilibili.com/video/BV1Z7411974h
2、串口转CAN转换格式介绍
https://www.bilibili.com/video/BV1Mz411B7c6
3、如何将MODBUS RTU转为CAN总线通讯
https://www.bilibili.com/video/BV1KT4y1E7Vt
4、广成科技GCAN-219WiFi-5G转CAN使用教学
https://www.bilibili.com/video/BV1q54y1a7ra
5、广成科技GCAN-218(CAN转4G)网关使用入门
https://www.bilibili.com/video/BV11Z4y1P7Ae
6、广成科技GCAN-218(CAN转4G)网关使用教学
https://www.bilibili.com/video/BV1dv411b7d2
-
GCAN-201串口转CAN网关用户手册
http://www.gcgd.net/filedownload/722318
GCAN-203蓝牙转CAN网关用户手册
http://www.gcgd.net/filedownload/722319
GCAN-203 V5蓝牙转CAN网关用户手册
http://www.gcgd.net/filedownload/730777
GCAN-204 modbus RTU转CAN网关用户手册
http://www.gcgd.net/filedownload/722320
GCAN-204C modbus RTU转CAN网关用户手册
http://www.gcgd.net/filedownload/1011690
GCAN-205 modbus TCP转CAN网关用户手册
http://www.gcgd.net/filedownload/722321
GCAN-205C modbus TCP转CAN网关用户手册
http://www.gcgd.net/filedownload/1011691
GCAN-206 CAN中继网桥用户手册
http://www.gcgd.net/filedownload/722322
GCAN-207多功能串口转CAN网关用户手册
http://www.gcgd.net/filedownload/722323
GCAN-208光纤转CAN网关用户手册
http://www.gcgd.net/filedownload/722325
GCAN-208-S光纤转CAN网关用户手册
http://www.gcgd.net/filedownload/722324
GCAN-208-2C光纤转CAN网关用户手册
http://www.gcgd.net/filedownload/1011692
GCAN-211 WIFI转CAN网关用户手册
http://www.gcgd.net/filedownload/722326
GCAN-212以太网转CAN网关用户手册
http://www.gcgd.net/filedownload/722327
GCAN-212-B以太网转CAN网关用户手册
http://www.gcgd.net/filedownload/835627
GCAN-212-W以太网转CAN网关用户手册
http://www.gcgd.net/filedownload/1011693
GCAN-213无线CAN网桥用户手册
http://www.gcgd.net/filedownload/722328
GCAN-216 CAN隔离器用户手册
http://www.gcgd.net/filedownload/722329
GCAN-216-P CAN隔离器用户手册
http://www.gcgd.net/filedownload/998335
GCAN-218 4G转CAN网关用户手册
http://www.gcgd.net/filedownload/722330
GCAN-226 CAN中继网桥用户手册
http://www.gcgd.net/filedownload/722331







